首页
找办公室
楼盘出售
共享办公
委托找房
房源投放
资讯
025-83111216
写字楼出租
写字楼出售
共享办公
今日好楼-南京写字楼,园区出租,办公楼出租出售,写字楼租赁价格,南京联合办公
>
写字楼出租
>
粤浦科技南京云创中心招商中心 独栋出售
粤浦科技南京云创中心招商中心 独栋出售
超高使用率
初创团队
采光好
86000
元/月
1.1元/平米/天
2632
平米
建筑面积
260-300
人
可容纳工位数
毛坯
装修程度
江宁区
江宁开发区佛城西路123号
李经理
业务精英 ,熟悉房源信息
025-83111216
欢迎您致电咨询
微信扫码一键拨号
房源信息
基础信息
使用率
90%
电梯口
是
所在楼层
1总楼层4
可备案
支持
朝向
东南
结构
平层
电梯数量
4部
上下水
不支持
相关费用
物业费
3元/㎡/月
空调费
24小时自控
停车费
免费
租赁信息
免租期
面议
最短租期
十二个月
押付方式
押二付三
所属大厦
大厦名称
粤浦科技南京云创中心
大厦均价
1.2元/平米/月
开发商
政府
地址
江宁开发区佛城西路123号
物业公司
自持物业
车位数
1200
查看更多大厦信息
房源介绍
粤浦科技南京云创中心租售中心:025-83111216。
粤浦科技·南京云创中心 是江宁区低效用地改造重点项目,也是粤浦科技在南京打造的首个旗舰项目,项目位于江宁开发区核心区域,总占地412亩,总建筑面积逾60万方,是长三角范围内为数不多的航母级高定旗舰园区。
【出售户型】:
4层独栋,面积:2160㎡,2280㎡,2632㎡
售价:均价8500元/㎡,一房一价面议
8层、10层分层,每层1035㎡
售价 : 均价7500元/㎡,一房一价面议,
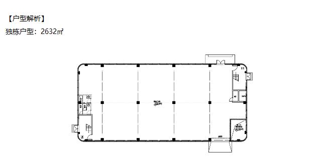
独栋户型:2632㎡-
双拼户型:2160㎡+2160㎡-
分层户型:1035㎡+1035㎡
更多详情请您实时来电咨询为准,欢迎您的致电
!
招商热线
:
025-83111216
预约看房
10分钟内响应,专业顾问为您服务
立即预约
推荐房源
佳强大厦写字楼招商中心
平米
江宁区江云路88号
2.1
元/平米/天.起
有志大厦-招商中心 面积182平 精装修
平米
南京江宁区科建路29号
1.9
元/平米/天.起
银城INC-招商中心 面积 135平
平米
南京市江宁区天元西路59号
2.3
元/平米/天.起
保利中心-招商中心 面积190平
平米
秦淮区红花街道汇景北路1号
3.2
元/平米/天.起