长江黄浦产业园招商中心 超高使用率 初创团队 采光好
54000 元/月1.5元/平米/天
1200 平米
建筑面积
100-120
可容纳工位数
简装
装修程度
玄武区
南京市玄武区耀园路8号

李经理

业务精英 ,熟悉房源信息

025-83111216

欢迎您致电咨询

微信扫码一键拨号
详情页概要信息区
房源信息
基础信息
使用率
75%
电梯口
所在楼层
4总楼层6
可备案
支持
朝向
东南
结构
平层
电梯数量
4部
上下水
支持
相关费用
物业费
5.00元/㎡/月
空调费
计电费
停车费
250元
租赁信息
免租期
面议
最短租期
十二个月
押付方式
押二付三
所属大厦
大厦名称
大厦均价
1.5元/平米/月
开发商
地址
物业公司
自持物业
车位数
340
查看更多大厦信息
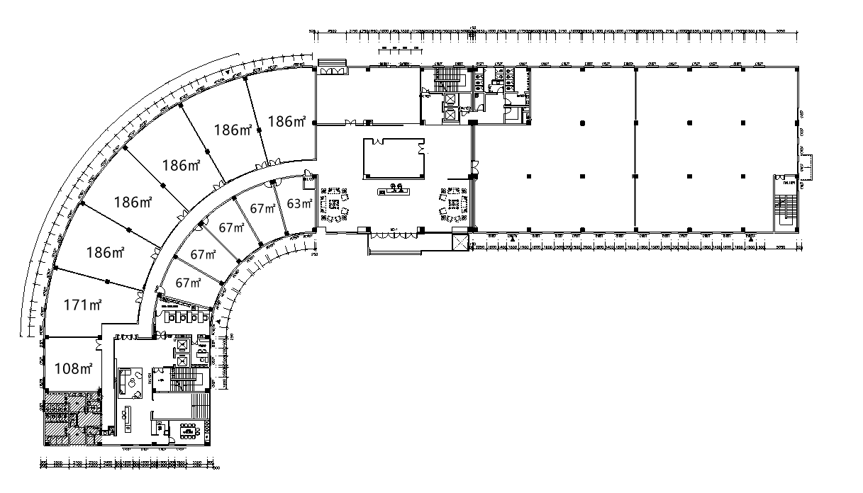
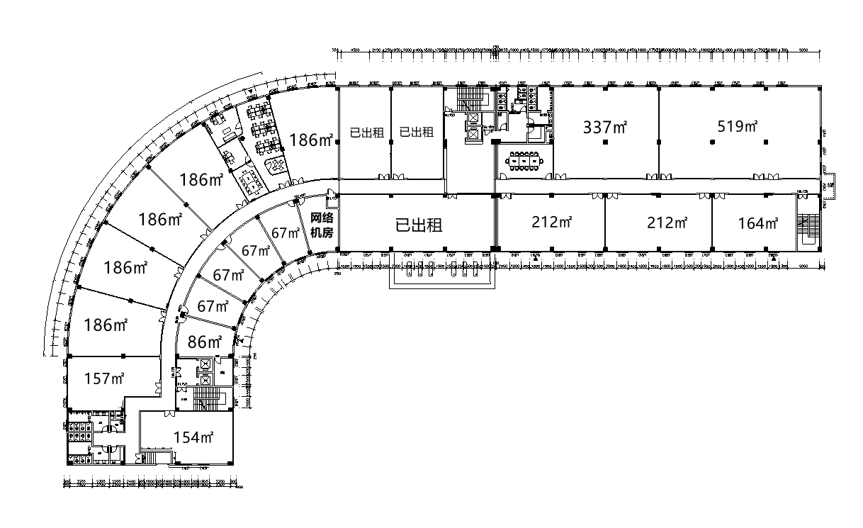
房源介绍
长江黄浦产业园招商中心

租赁面积:50--150--220--290--360--600-1000-5000平方(建筑面积)不等 。可分割,可注册

更多详情请您实时来电咨询为准,欢迎您的致电!

招商热线025-83111216

预约看房
10分钟内响应,专业顾问为您服务
推荐房源