石榴财智中心-招商中心 面积420平方 含物业费 超高使用率 即租即用 包物业费 采光好
46000 元/月3.7元/平米/天
420 平米
建筑面积
40-50
可容纳工位数
精装
装修程度
鼓楼区
鼓楼区草场门大街石头城6号

李经理

业务精英 ,熟悉房源信息

025-83111216

欢迎您致电咨询

微信扫码一键拨号
详情页概要信息区
房源信息
基础信息
使用率
85%
电梯口
所在楼层
4总楼层5
可备案
支持
朝向
东南
结构
平层
电梯数量
4部
上下水
支持
相关费用
物业费
空调费
计电费
停车费
300元
租赁信息
免租期
面议
最短租期
十二个月
押付方式
押二付三
所属大厦
大厦名称
大厦均价
3.2元/平米/月
开发商
地址
物业公司
自持物业
车位数
800
查看更多大厦信息
房源介绍
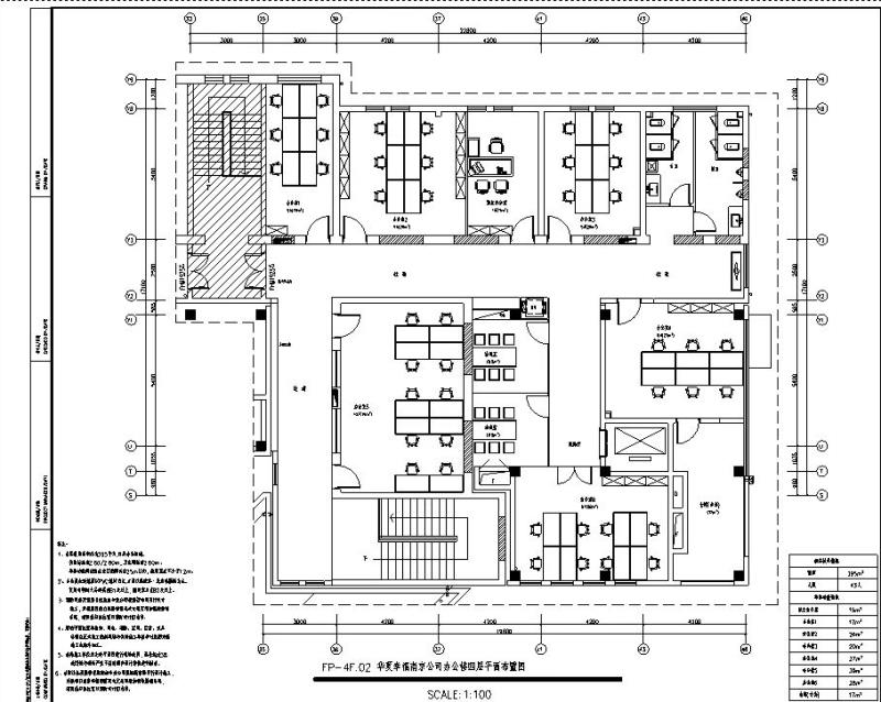
石榴财智中心
面积:420平
价格:3.7元/天/平(含税含物业费)
房屋描述:独立整层,公用电梯厅,电梯刷卡入户,独立卫生间,大气前台,共8个办公室

租赁面积:50--150--220--290--360--600-1000-5000平方(建筑面积)不等 。可分割,可注册

更多详情请您实时来电咨询为准,欢迎您的致电!

招商热线025-83111216


预约看房
10分钟内响应,专业顾问为您服务
推荐房源