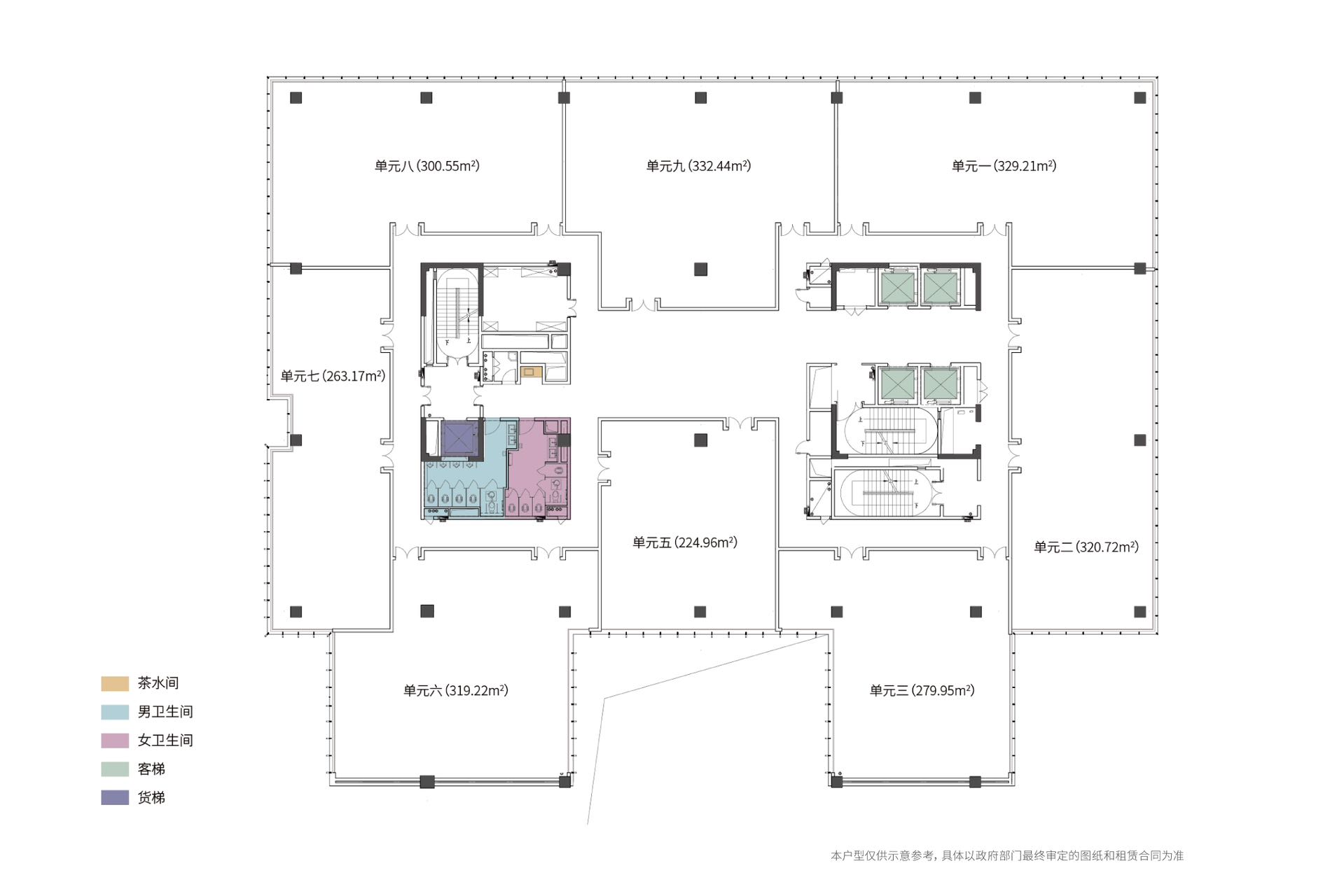
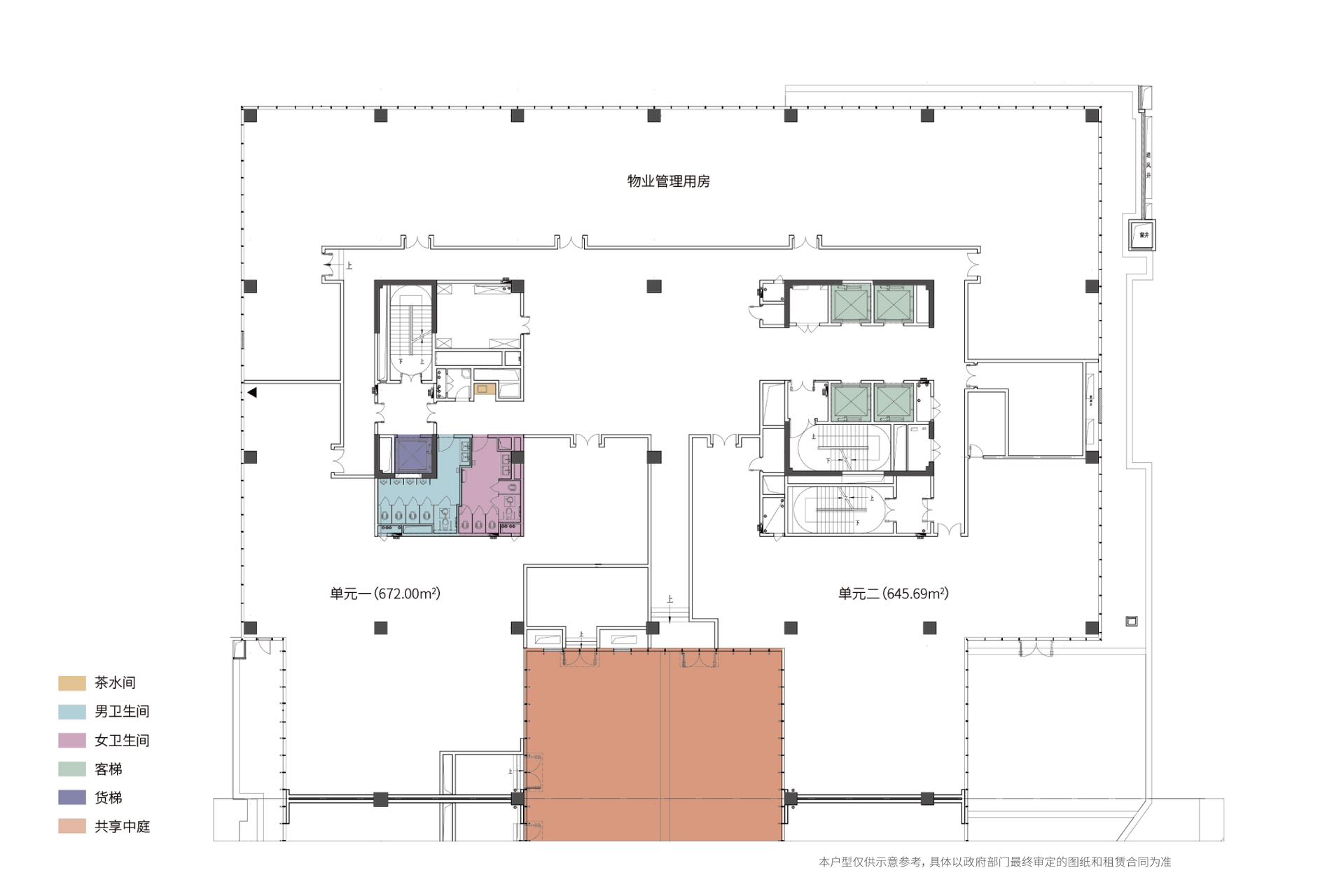
200-2700平米
基础信息
大厦名称
保利南自智汇中心
开发商
保利地产
大厦地址
南京市鼓楼区南瑞路6号
物业公司
保利物业
入驻企业
电力公司,通信,基站,大健康医疗
建筑信息
层高
4.2米
总楼层
12层
电梯数量
8部
标准面积
86000㎡
空调类型
24小时自控
停车位
1788个
相关费用
物业费
12.00元/㎡/月
停车费
400元

