100-6000平米
基础信息
大厦名称
U7工园徐庄文化中心
开发商
街道
大厦地址
南京市玄武区苏宁大道699-40号
物业公司
自持物业
入驻企业
茶百道,星巴克!
建筑信息
层高
4.2米
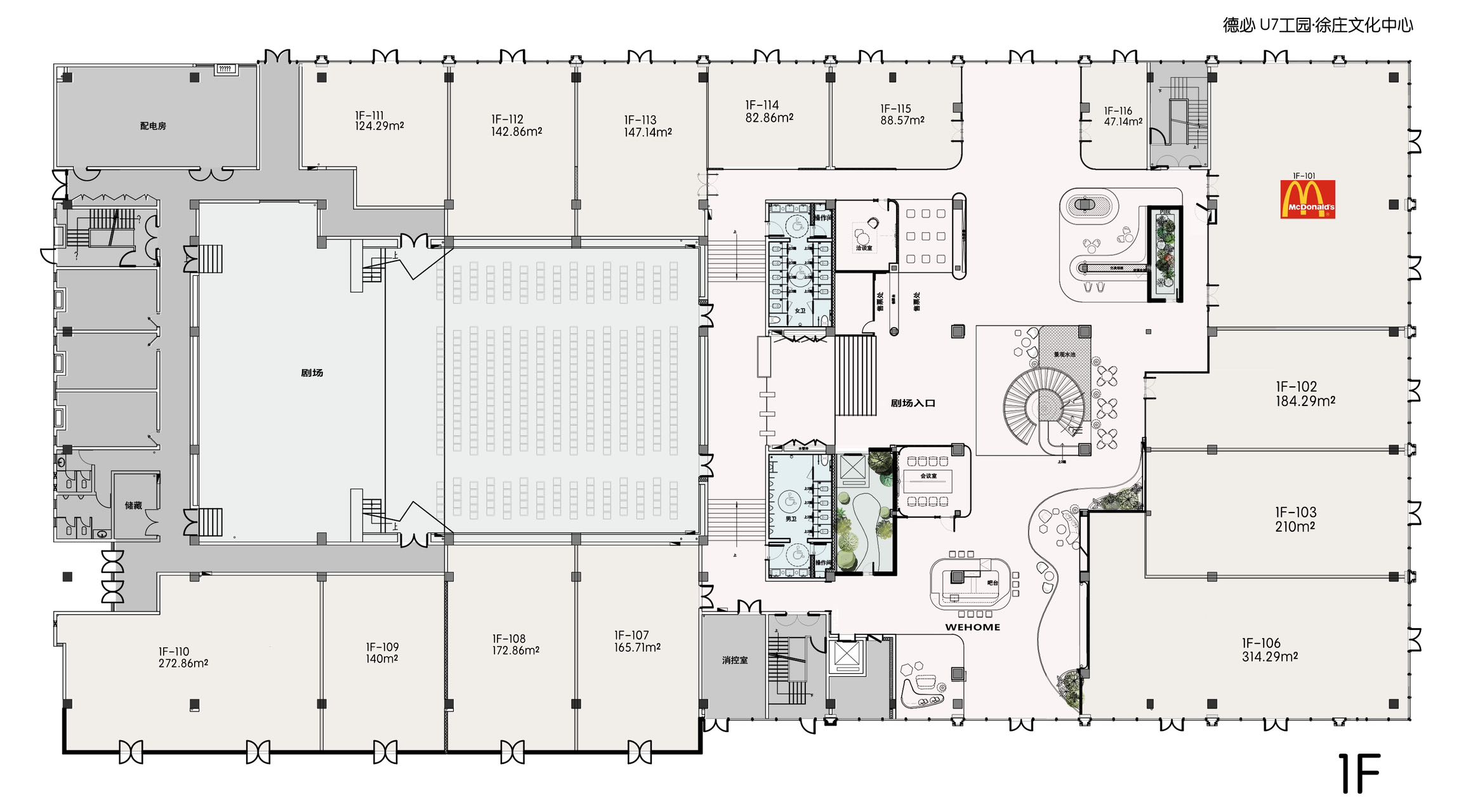
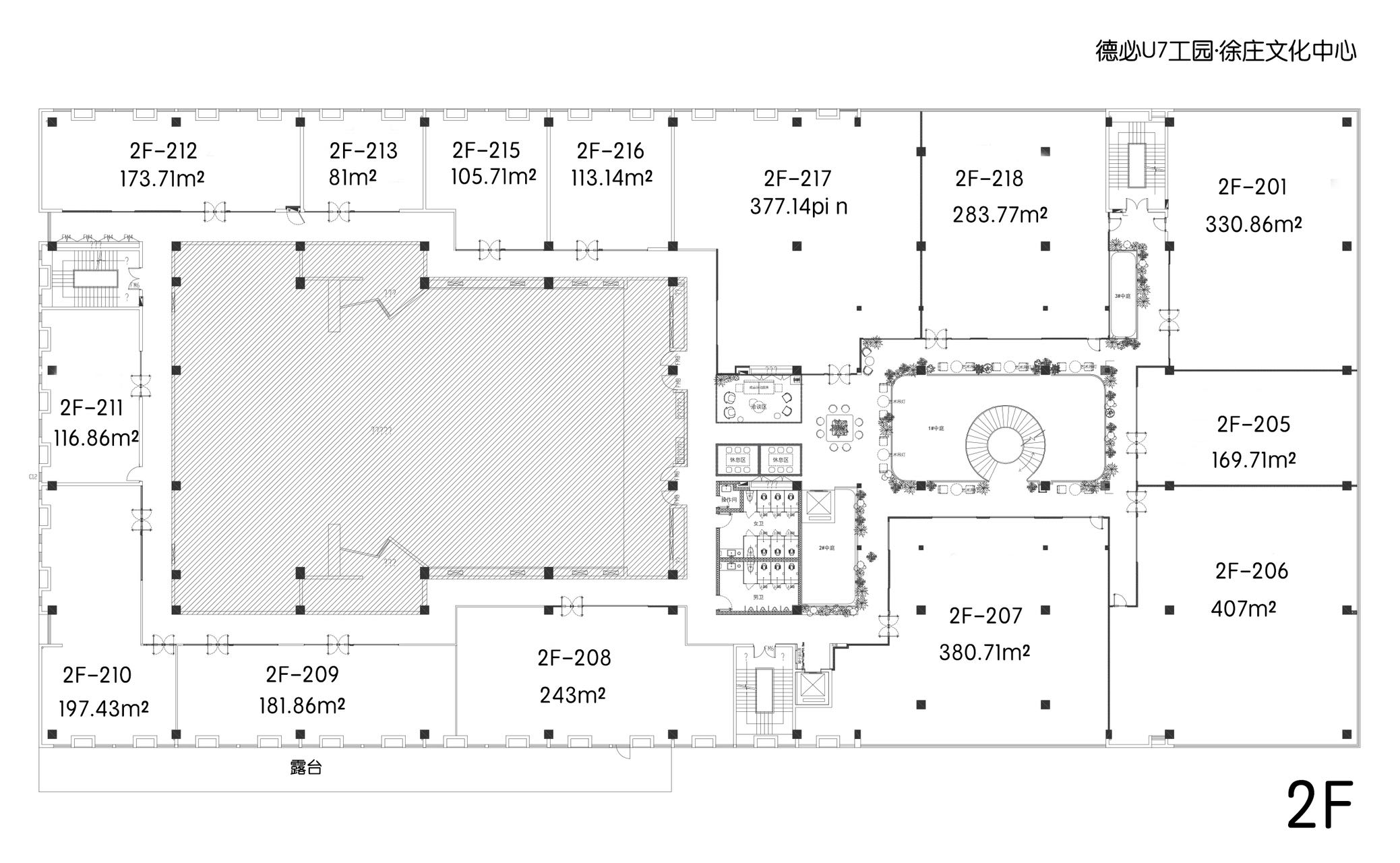
总楼层
3层
电梯数量
4部
标准面积
26000㎡
空调类型
24小时自控
停车位
100个
相关费用
物业费
7.00元/㎡/月
停车费
300元

