100-2000平米
基础信息
大厦名称
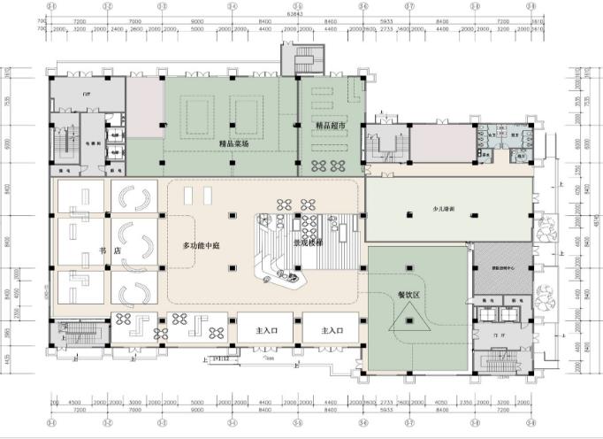
顶好时光客厅
开发商
雅居乐
大厦地址
南京市江北新区天浦路96号
物业公司
自持物业
入驻企业
人工智能、集成电路、新材料等科技型公司
建筑信息
层高
3.2米
总楼层
10层
电梯数量
3部
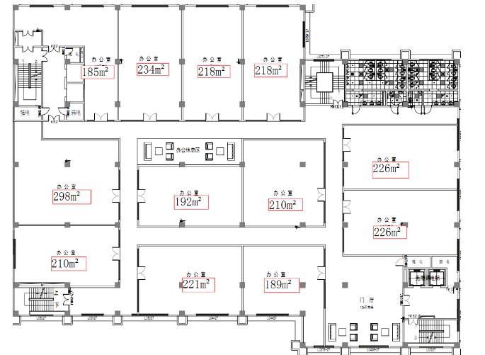
标准面积
15600㎡
空调类型
24小时自控
停车位
200个
相关费用
物业费
4.00元/㎡/月
停车费
200元

